选桩之道:各安其位,物尽其用

2026-03-31
桩基础造价约占土建造价的 10%~30% ,是建筑设计环节的核心组成部分。在保障结构安全的前提下兼顾经济性,正确合理地选择桩型尤为关键。
桩型选取的设计核心,在于结合地质条件与结构荷载精准选型,使各类桩体各司其职,既保障工程安全稳定,又实现材料、成本与效能的最优平衡。桩基础选型绝非单一的技术参数比对,而是需综合考量场地土层特性、上部结构传力路径、施工工艺可行性及全生命周期经济性的系统工程。唯有让不同桩型在适配工况下充分发挥自身力学性能优势,才能真正践行“各司其职、物尽其用”的设计理念,为建筑主体筑牢稳固根基。
桩型选取的核心在于适配性。设计中需结合场地地质条件,合理确定桩型,精准选定桩持力层、承载力参数及桩径尺寸,充分发挥桩体自身特性优势,最大化实现经济效益。以下结合实际工程案例具体说明。

图片
01
项目概况

浙江某工业项目,上部为两层生产车间带一层地下室的多层混凝土厂房,柱网尺寸9m×9m。原基础设计采用桩(抗压兼抗拔)基础方案,抗浮方式 选用抗拔桩,桩持力层为强风化花岗岩,桩长约26m。

图片
02
优化方案

综合考量项目楼层少、单柱荷载标准值偏低的特点,结合地质勘察报告核心数据(场地土层以粉质粘土为主,承载力特征值 fa =160kPa,满足筏板基础持力层要求),建议将基础形式优化为筏板基础+抗拔桩( 仅考虑抗拔要求 ) 。具体优势如下所示 :
  1. 荷载实配:优化后,竖向抗压荷载由筏板基础通过大面积接触土层均匀传递,无需桩体额外承载,抗拔桩仅专注抵抗地下水浮力 ,实现“各司其职”的精准受力分工。
  2. 抗沉降性能更优:筏板基础整体刚度大,能有效分散上部荷载,避免局部沉降不均问题;相较于原桩基础的点式承载,筏板与土层的面状接触更适配场地均匀粉质粘土地质,进一步提升基础稳定性。
  3. 施工更便捷:原抗压桩需控制桩端进入强风化花岗岩的深度,施工难度大、工期长;优化后的抗拔桩施工无需严格追求深层持力层,且筏板施工工艺成熟,整体工期可缩短15%左右。

    图片

  • 图 1 厂房剖面图
图片
图片
  • 图 2 场地地质土层情况
图片
图片
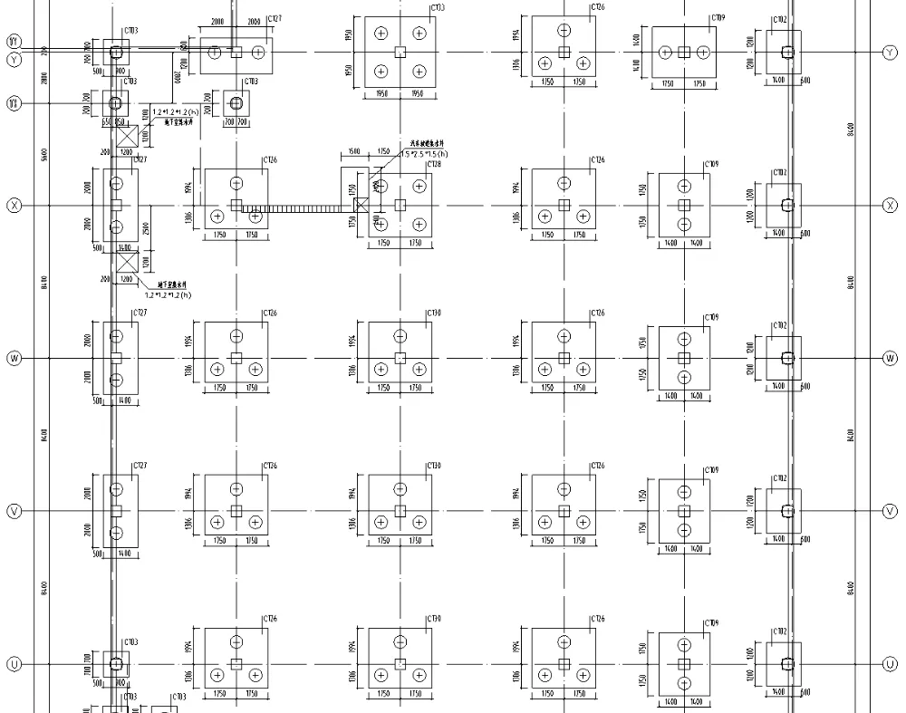
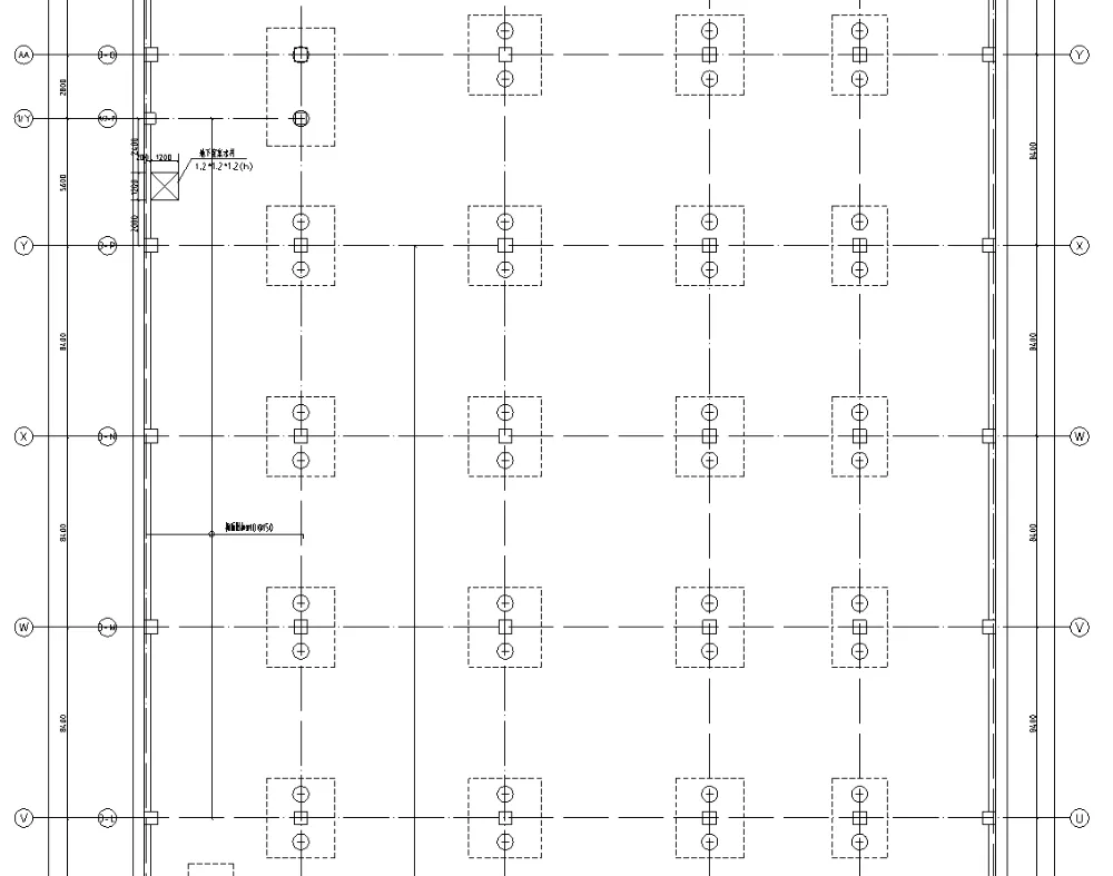
  • 图 3 原基础设计方案
图片
图片
  • 图4优化后基础设计方案
最终根据优化后图纸测算,单桩基这一项就节省230万元。

图片
03
总结

本项目基础方案优化,核心是遵循 桩型适配、物尽其用 原则。结合项目低荷载、均质地勘 的实际条件,摒弃“大而全”的抗压兼抗拔桩方案,采用 筏板承压+抗拔桩抗浮 的分工模式,既保障结构安全稳定,又显著降低工程成本。该案例充分证明,桩型选型的关键不在于工艺复杂或桩体截面大,而在于精准匹配工程实际需求 ,实现各构件效能最大化。