外立面的那些优化点

2025-12-09
外墙是建筑能耗的“主战场”。
建筑外立面的成本优化是一个在保证安全性、美观性和基本性能的前提下,对设计、材料、构造和施工进行精细化管理的过程。以下是外立面成本优化的关键点,从“看得见”的材料到“看不见”的设计和流程,层层递进。这就是设计中所谓的“少即是多”。
01
外墙材料的优化


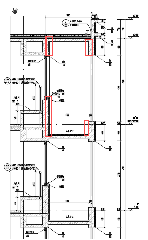
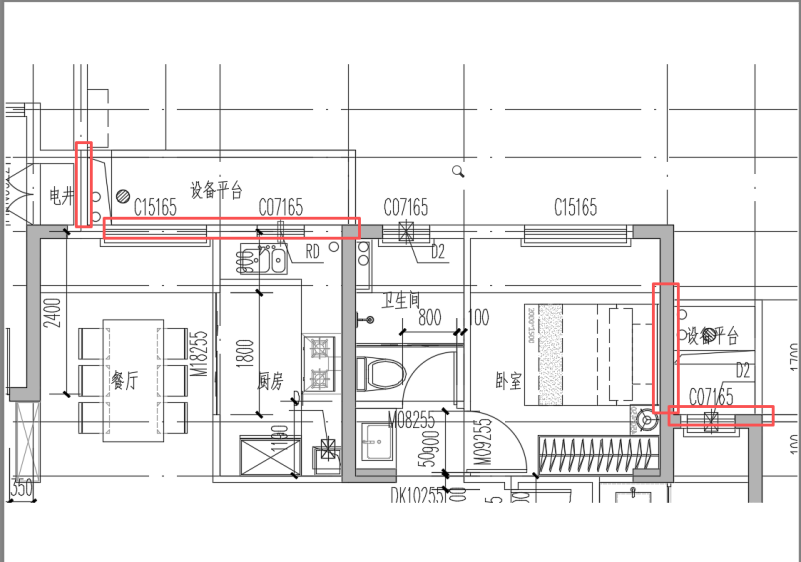
案例:安徽某住宅项目

原方案:设备平台处外墙材料选用为真石漆,与可视主要立面选材一致
优化建议:设备平台内侧墙体为低可视、低价值区,以满足基本功能为主。此区域外墙材料可由真石漆改为同色系的弹性涂料。
02
外立面玻璃的优化

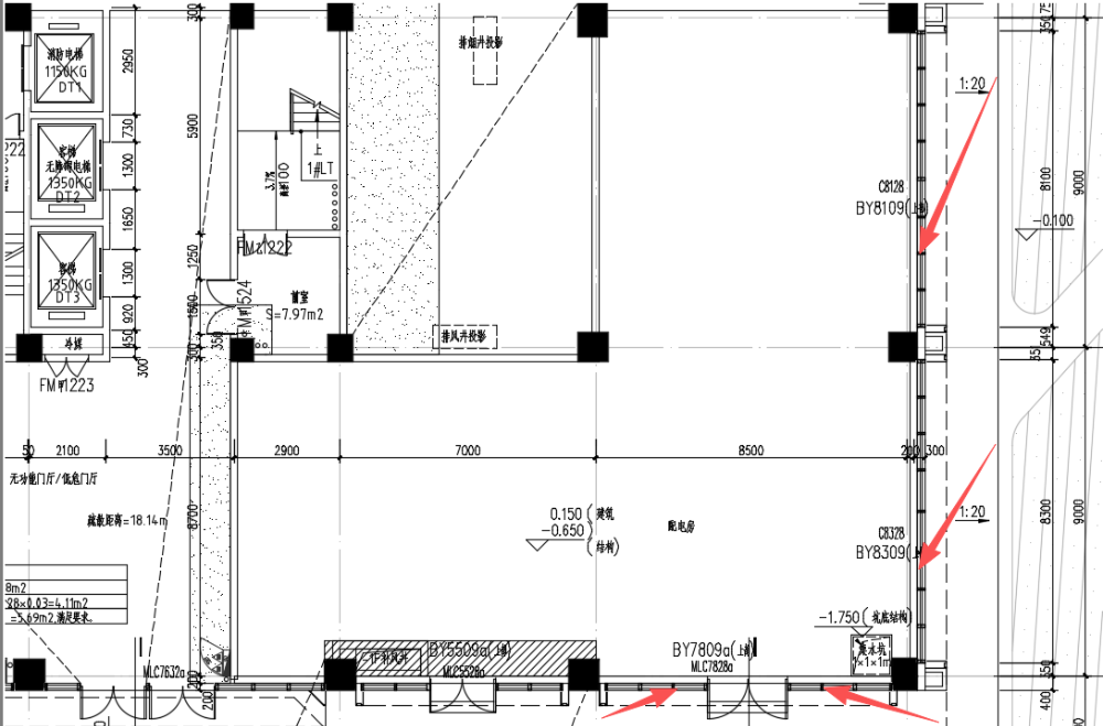
案例:杭州某办公项目

原方案:一层平面配电房外窗采用与标准层相同的6+12Ar+6中透双银Low-E(29mm隔热条)玻璃。是否需要如此高配置,显而易见不需要。
优化建议:在满足结构、隔热性能的前提下,采用同色系的单层玻璃从而起到不影响原有外立面且能节约成本的效果
03
没必要的消防救援窗


案例:杭州某办公项目

原方案:二层外墙在有窗的前提下仍旧设置了消防救援窗
优化建议:紧跟新的(建筑防火通用规范),取消二层消防救援窗设置。应消防救援窗需采用安全玻璃,安全玻璃的单价高于普通玻璃。轻松过审,节约成本。


总结:我们的“优化”不等于“降标”,而是通过优化材料选型、简化构造节点、提升施工效率,从而去实现价值的最大化。是在建筑生命的周期内,对其成本最有效的控制。


       作者:杨涵