警惕!装修拆飘窗的人,都在为这 4 大不可逆损害买单

2026-02-10
装修时总想着“榨干”每一寸空间,不少业主把主意打到了飘窗上——“拆了能多2㎡,看着就香!”但今天必须把话说透:你家的飘窗,真不是想拆就能拆!擅自动手,不仅可能面临巨额罚款,更会给整栋楼的安全埋下炸弹。

图片
01
别碰规划红线!拆飘窗=违规改建
图片
你以为拆的是“多余的窗户”,其实碰的是规划审批的“高压线”。
图片

根据《浙江省建筑工程建筑面积计算和竣工综合测量技术规程》,飘窗(凸窗)是建筑外立面的重要组成部分,形态、位置都经过规划部门审核确认,还纳入了建筑面积与容积率核算。 简单说,它是房子“合法身份”的一部分,不是你家的“私人改造区”。
按照《住宅室内装饰装修管理办法》,未经批准擅自改变建筑外立面,属于明确的违规行为。等待你的不是“多出来的空间”,而是行政执法部门的责令整改、恢复原状,还有跑不了的行政处罚。
图片

图片
02
真飘窗是“承重骨”!拆它就是毁大楼根基
图片
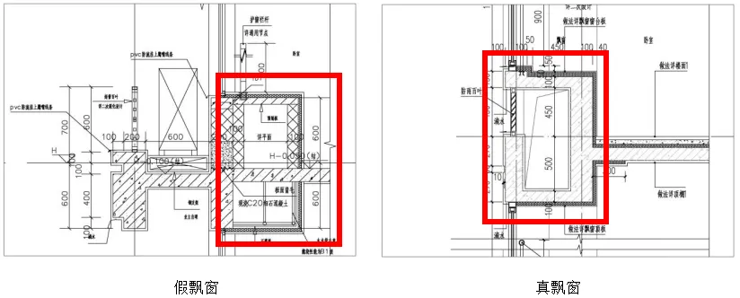
很多业主分不清“真飘窗”和“假飘窗”,但多数住宅的飘窗都是“承重结构型飘窗”——钢筋混凝土窗台板、上翻梁,和建筑主体的梁、柱、外墙牢牢连在一起,构成完整的承重体系,就像大楼的“肋骨”。
图片
图片

《浙江省房屋使用安全管理条例》 第十条明确规定:“住宅房屋装修不得拆除、变动房屋基础、梁、柱、楼板、承重墙、外墙等建筑主体或者承重结构,不得超过原设计标准增加房屋使用荷载” 。而你家的飘窗,早已被设计单位认定为“建筑主体结构组成部分”, 拆除行为直接违反该条例强制性条款。
图片
更可怕的是安全风险:
  • 拆飘窗会削弱楼板承载力,导致墙体开裂、楼板变形,极端情况可能引发局部坍塌;
  • 还会破坏建筑抗震性能,地震时大楼的抗侧移能力大幅下降;
  • 最终影响整栋楼的稳定性,让家家户户都活在安全隐患里 。

图片
03
保温防水全报废!后续麻烦比你想的更糟
图片
飘窗可不是“一块简单的混凝土板”,而是“保温+防水”一体化防护体系——外墙防水层+保温层,形成双重保护,既防雨水渗漏,又能隔绝室外冷热。
  • 防水层断裂后,雨水顺着裂缝渗进室内,墙面霉变、地板起鼓、电器受潮短路,维修要凿墙重做,成本高还难恢复原样;
  • 拆除的震动会让窗框密封胶脱落、固定件松动,形成隐性渗漏点,后期想根治比登天还难;
  • 甚至可能导致楼下飘窗顶板开裂,雨水漏到邻居家,引发天花板脱落、家具损坏的邻里纠纷;
  • 保温层被破坏后,这里会变成“冷热桥”,冬季采暖、夏季制冷能耗直接上升15%-25%,每月电费账单都要多一笔,还违反了建筑节能强制标准。

图片
04
法律后果找上门!5万起罚+赔偿责任跑不掉
图片
别抱着“没人发现”的侥幸心理,法律早就把后果写得明明白白。
图片

根据《建设工程质量管理条例》第六十九条, 房屋建筑使用者擅自变动房屋建筑主体和承重结构的,将被责令改正,并处5万元以上10万元以下罚款 。 如果造成损失,还要依法承担赔偿责任——不管是邻居家的财产损失,还是大楼结构修复的费用,都得由你全额买单。
图片
要知道,房屋所有权人是房屋使用安全第一责任人,装修前必须向物业服务企业申报登记。如果想优化飘窗使用,完全可以咨询物业或原设计单位,用合规 方式改造,千万别脑子一热擅自拆改。
现在物业服务企业会全程监督装修行为,一旦发现违规拆改会立即制止并上报主管部门。

图片
05
最后提醒 ! 最后提醒 !! 最后提醒!!!
图片
装修扩容的初衷没错,但安全永远是第一位的。飘窗拆了可能多2㎡空间,却要赌上自己和整栋业主的生命财产安全,还要面临法规的严惩,这笔账怎么算都不划算。
别让一时的贪心,变成一辈子的麻烦。转发给正在装修的朋友,守住安全底线,才是对家最好的负责!